Дома под ключ в Одинцово
Отзывы из Яндекс Карт
4.9
114 отзывов
Дополнительные услуги 88%
2 154 оценок
Комплектации 89%
1 535 оценок
Планировки 90%
2 484 оценок
Проекты 93%
2 231 оценок
С
Нила Ж.10.06.2025 г.
Мне, как женщине, было очень важно, чтобы дом был не только крепким, но и красивым, и "Брус дома" прекрасно справились с этой задачей. Домокомплект был собран ювелирно, все детали идеально подогнаны. Я счастлива, что моя мечта о светлом деревянном доме с большими окнами наконец сбылась, и сбылась так прекрасно.
Отзывы из Google Карт
4.8
69 отзывов
Дополнительные услуги 88%
2 154 оценок
Комплектации 89%
1 535 оценок
Планировки 90%
2 484 оценок
Проекты 93%
2 231 оценок
С
Валя М.26.04.2025 г.
После сдачи объекта мне подробно объяснили все правила ухода за древесиной и предоставили гарантию, что является финальным штрихом в портрете серьезной и надежной компании.
Отзывы из 2гис
4.9
38 отзывов
Дополнительные услуги 88%
2 154 оценок
Комплектации 89%
1 535 оценок
Планировки 90%
2 484 оценок
Проекты 93%
2 231 оценок
С
Лира Колесникова20.01.2025 г.
Хочу отметить оперативность и четкую организацию всех процессов. От подписания договора до заседания прошло совсем немного времени. Каждый этап строительства согласовывался, ни одна мелочь не была упущена из виду. Огромное спасибо за наш уютный дом.


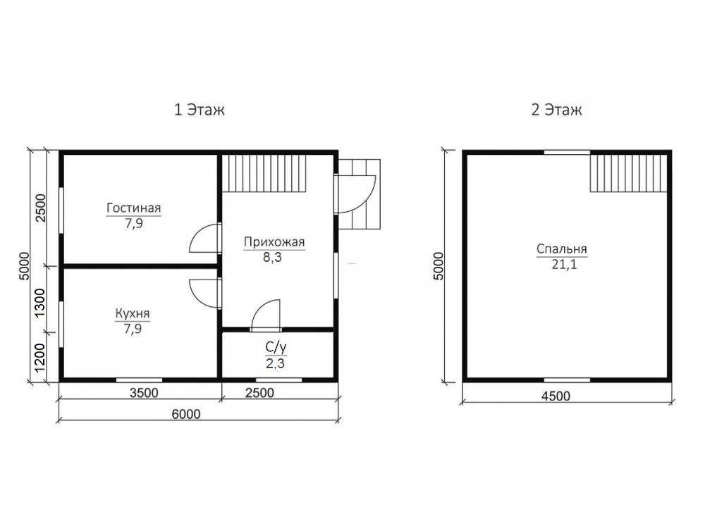
Проект №6 Дом с мансардой 6х5

каркас из строганой доски
Создайте свой план для этого проекта
и отправьте его нам на расчет в один клик.
Каркасный дом (150 мм) 6х5 Толщина утепления 150 мм 1530900 Заказать
Каркасный дом (200 мм) 6х5 Толщина утепления 200 мм 1670900 Заказать

Для того, чтобы получить личную планировку, воспользуйтесь планировщиком.

С помощью планировщика вы имеете возможность создавать подходящие чертежи, планы, схемы, эскизы дома с мансардой, эркером, с требуемым количеством комнат. В итоге получится личный проект с современной планировкой, который 100% отвечает вашим требованиям.

Заказывая дом вы имеете возможность выбрать тип крыши: двускатная, четырехскатная и вальмовая. Двухскатную считают особенно популярной в небольших домах.

Самые востребованные размеры: мини - до 50м2 (чаще всего, одноэтажные); компактные - от 70 до 100 квадратов (обычно 2-этажные); большие - от 150 кв. М и больше.

Строим дуплексы - большие надежные каркасные дома с двумя входами на несколько семей. Дома строятся для двух хозяев и делятся на две части, для каждой половины с отдельным входом.


Наши работы

Перейти в галерею


Комплектация

Длина: 6 м
Ширина: 5 м
Общая площадь: 48.14 м2
Исполнение Под ключ (с отделкой)
Фундамент Свайно-винтовой или ж/б сваи (рассчитываются отдельно).
Гидроизоляция фундамента Рубероид в два слоя.
Основание (обвязка) Из обрезного бруса 150х150 мм. 150х200 мм. согласно выбранной толщине утепления. Торцевая доска строганая 45х145/45х195+/-5 мм. согласно выбранной толщине утепления. Обработка антисептиком.
Цокольное перекрытие Строганая доска камерной сушки 45х145/45х195+/-5 мм. с шагом 590 мм. Обработка антисептиком.
Пол черновой Обрезная доска камерной сушки 20х100 мм.
Влаго-ветрозащита чернового пола Мембрана Ондутис А100.
Внешние стены Стойки каркаса из строганой доски камерной сушки 45х145/45х195+/-5 мм. с шагом 590 мм. Верхняя двойная и нижняя обвязки из строганой доски камерной сушки 45х145/45х195+/-5 мм. Разгрузочный ригель из строганой доски 45х145+/-5 мм. Укосины из строганой доски 20х95 мм.
Перегородки Стойки каркаса из строганой доски камерной сушки 45х95+/-5 мм. с шагом 590 мм. Верхняя двойная и нижняя обвязки из строганой доски 45х95+/-5 мм. Разгрузочный ригель из строганой доски камерной сушки 45х145+/-5 мм. Укосины из строганой доски камерной сушки 20х95 мм.
Сборка каркаса На гвозди.
Высота от пола до потолка Дом одноэтажный: 2,5 м. Дом с мансардой: 1-ый этаж- 2,5 м.
2-ой этаж (мансарда)- 2,3 м.
Дом в полтора и два этажа:
1-ый этаж 2,5 м.
2-ой этаж 2,4 м. в полутораэтажном доме
2,5 м. в двухэтажном доме.
Внешняя отделка стен Имитация бруса камерной сушки, сорт АВ, толщиной 17 мм. Монтаж через строганый брусок камерной сушки 45х45+/-5 мм. (вентилируемый фасад). Влаго-ветрозащитная мембрана- Ондутис А100.
Внутренняя отделка стен, перегородок Евровагонка камерной сушки, сорт АВ, толщиной 12,5 мм. по строганой рейке 20х40+/-5 мм. либо ГКЛ 12,5 мм.
Отделка потолка Евровагонка камерной сушки, сорт АВ толщиной, 12,5 мм. по строганой рейке 20х40+/-5 мм. либо ГКЛ 12,5 мм.
Пол чистовой Шпунтованная доска камерной сушки толщиной 35-36 мм. сорт АВ. по строганой рейке 20х40+/-5 мм. либо шпунтованная ДСП 16 мм. по разряженной обрешётке из строганой доски камерной сушки 20х95+/-5 мм.
Утепление (пол, потолок) Минеральная вата Knauf 150/200 мм. согласно выбранной толщине утепления.
Утепление стен Плитный утеплитель Rockwool, толщиной 150/200 мм. согласно выбранной толщине утепления.
Звукоизоляция перегородок Плитный утеплитель Rockwool, толщиной 100 мм.
Пароизоляция (стены, перегородки, пол, потолок) Плёнка Ондутис R70. Дополнительная герметизация нахлёстов/примыканий пароизоляционной плёнки клейкой лентой Delta.
Окна Двухкамерные стеклопакеты ПВХ белого цвета, профиль 60 мм. В комплекте: отливы, подоконники, москитные сетки.
Двери Входная- металлическая, утеплённая (Россия). Межкомнатные- филёнчатые.
Наличники на окна и двери Наличник деревянный, строганый, камерной сушки 70-90 мм. с двух сторон.
Лестница (при наличии второго этажа) Деревянная, одно или двухмаршевая. Перила- заводские резные, балясины- заводские точеные, устанавливаются стартовые точёные столбы. Ступени 40х200 мм. Тетива лестницы- 90х140 мм.
Крыша Двускатная, ломаная или вальмовая в соответствии с проектом.
Стропильная система Выполнена из строганой доски камерной сушки 45х145/45х195+/-5 мм. Шаг установки стропил 590 мм.
Обрешётка Выполняется из строганой доски камерной сушки толщиной 20х95+/-5 мм. Шаг крепления обрешетки 350 мм. Контробрешётка выполняется из строганого бруска камерной сушки 45х45+/-5 мм. Крепится по стропилам (вентиляционный зазор).
Подкровельная мембрана Ондутис А100
Кровельное покрытие (на выбор) Металлочерепица 0,45 мм. Цвет на выбор.
Фронтоны (при наличии) Каркас из строганой доски камерной сушки 45х145/45х195+/-5 мм. Обшиваются имитацией бруса камерной сушки, сорт АВ, толщиной 17 мм. Монтаж через строганый брусок камерной сушки 45х45+/-5 мм. (вентилируемый фасад). Влаго-ветрозащитная мембрана- Ондутис А100. Монтаж вентиляционных решёток.
Свесы крыши Ширина 400 мм. Подшиваются вагонкой камерной сушки, сорт АВ.
Терраса/балкон (при наличии) Устанавливаются опорные столбы из строганного бруса камерной сушки 140х140 мм.
Отделка потолка террасы/балкона Евровагонка камерной сушки толщиной 12,5 мм. сорт АВ.
Пол террасы/балкона Шпунтованная доска камерной сушки толщиной 35-36 мм. сорт АВ.
Ограждение террасы/балкона Перила- строганая доска. Балясины- точеные, фигурные. Либо ограждение в скандинавском стиле. Устанавливаются ступени у входа.
Допуск на геометрические параметры Составляет +/- 50 мм по длине с каждой стороны.
Допускается стыковка имитации бруса, вагонки и половой доски По всему периметру стен дома (если ширина и длина дома более 6,0 метров). Вагонки и доски пола в каждой отдельной комнате.
Допуски по имитации бруса, вагонке, доске +/- 5 мм.
В стоимость включена Доставка комплекта материала в радиусе 500 км. от г. Пестова Новгородской области и сборка дома на вашем участке.
Гарантия 5 лет.
Бытовка строительная 2,0х3,0 м. каркасно-щитовая. Стоимость 23000 руб. Остаётся на участке Заказчика.
Туалет 1,0х1,0 м. каркасно-щитовой. Стоимость 12000 руб. Остаётся на участке Заказчика.
Генератор Стоимость аренды на весь срок строительства 15000 руб. ГСМ за счёт Заказчика.

Постройка каркасных домов производится в 2-х видах: под усадку, когда сруб будет отстаиваться некоторое время и под ключ.

В мороз стоит строить дом в холодную погоду, чтобы каркас не успел промокнуть, в летнюю пору - не под дождем.

Подходящими для дачи или сада являются дома на винтовых сваях, на нашем сайте имеются одноэтажные и полуторатажные типы домов.

Для ПМЖ (постоянного проживания), готовы предложить надежные и очень теплые коттеджи и дома на плитных и ленточных фундаментах.

Мы можем предложить 2 вида утепления: 200 мм и 150 мм. Каркасные дома с утеплителем двести миллиметров получаются теплее, но стоят дороже.

Дополнительные услуги


Дом из каркаса , по проекту 6 полутораэтажный с теплоизолированной двускатной кровлей, отличается экологической безопасностью, благодаря использованию древесно-стружечных плит, теплоизоляционной ваты, а это обеспечивает отменную морозостойкость, оптимальный микроклимат в помещении. Размеры помещения составляют 6х5 м., общая жилая площадь - 48.14 кв.м.. Наша организация в кратчайшие сроки построит каркасник по персональному или типовому плану в Одинцово в любое время года и на выбранном вами виде грунта.

Популярные проекты


Дома из бруса с мансардой Дома из бруса 4х5 Каркасные дома с террасой
хит продаж
Тип: с большой террасой
Общая площадь: 2
3077400
от 2930900
хит продаж
Тип:
Общая площадь: 2
2342400
от 2230900
хит продаж
Тип:
Общая площадь: 2
3318900
от 3160900
Дома из бруса

Заказать или задать вопрос



Заказать или задать вопрос

Заказать звонок